Office Contact







$914.57/sq ft
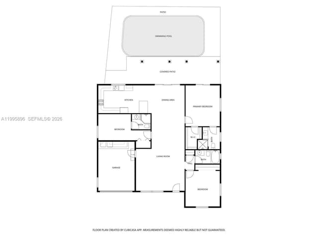
Over $130K in upgrades! Stunning 3-bedroom, 3-bath waterfront home in Pompano Isles with no fixed bridges and 60 feet of water frontage just off the Intracoastal Waterway. This move-in-ready residence...
MLS#:
A11853661
Price:
$1,488,000
Type:
Single Family
Living Area:
1,627 Sq Ft
Bedrooms:
3
Bathrooms:
3
Property Status:
Active
Car Garage:
1
Year Built:
1972
Lot Size:
6,000 Sq Ft
Tax Annual:
$22,276




Equal Housing Opportunity. The multiple listing information is provided by the Miami Association of REALTORS®, from a copyrighted compilation of listings.
7401 Wiles Rd, Suite# 236
Coral Springs, FL 33067
Edwin Roman Lic. Re Broker
We are committed to the principles of Fair Housing and Equal Opportunity. All real estate services are provided without regard to race, color, religion, sex, handicap, familial status, national origin, gender identity, or sexual orientation.
© Realsperity 2025 All rights reserved
Designed and Developed With ❤️ by Realsperity